Rif: MAGAZZINO - DEPOSITO
ROMA
ROMA - zona Cornelia - Montespaccato
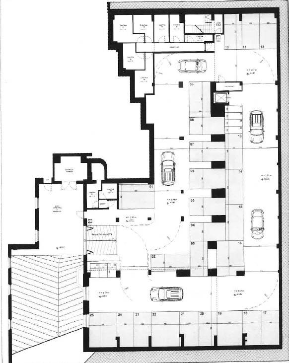
In Via Cornelia a due passi dalla Via Boccea proponiamo la vendita di un deposito di circa 1.100 mq adatto ad attività tipo, stoccaggio merci, rimesse veicoli, deposito attrezzature, etc...
comoda Rampa di accesso collocata dopo un cancello scorrevole automatizzato molto grande, il locale deposito va completamente ristrutturato.
E' possibile abbinare anche un ulteriore superficie, destinazione commerciale, posta al piano primo, direttamente collegata al deposito con una comoda scala interna,
sarebbe adatta per ufficio di gestione del locale deposito, la superficie del piano primo può andare da un minimo di 300 Mq fino ad un massimo si 650 mq, il prezzo richiesto in pubblicità non comprende questa ulteriore superificie.
Per ulteriori info chiamare il 329.2307797 Manuel Pasquini
comoda Rampa di accesso collocata dopo un cancello scorrevole automatizzato molto grande, il locale deposito va completamente ristrutturato.
E' possibile abbinare anche un ulteriore superficie, destinazione commerciale, posta al piano primo, direttamente collegata al deposito con una comoda scala interna,
sarebbe adatta per ufficio di gestione del locale deposito, la superficie del piano primo può andare da un minimo di 300 Mq fino ad un massimo si 650 mq, il prezzo richiesto in pubblicità non comprende questa ulteriore superificie.
Per ulteriori info chiamare il 329.2307797 Manuel Pasquini
Consistenze
| Descrizione | Superficie | Sup. comm. |
|---|---|---|
| Principali | ||
| Magazzino - seminterrato | 1.100 Mq | 1.100 Mqc |
| Totale | 1.100 Mqc | |
