Rif: Fucini
ROMA
ROMA - zona Talenti - Monte Sacro
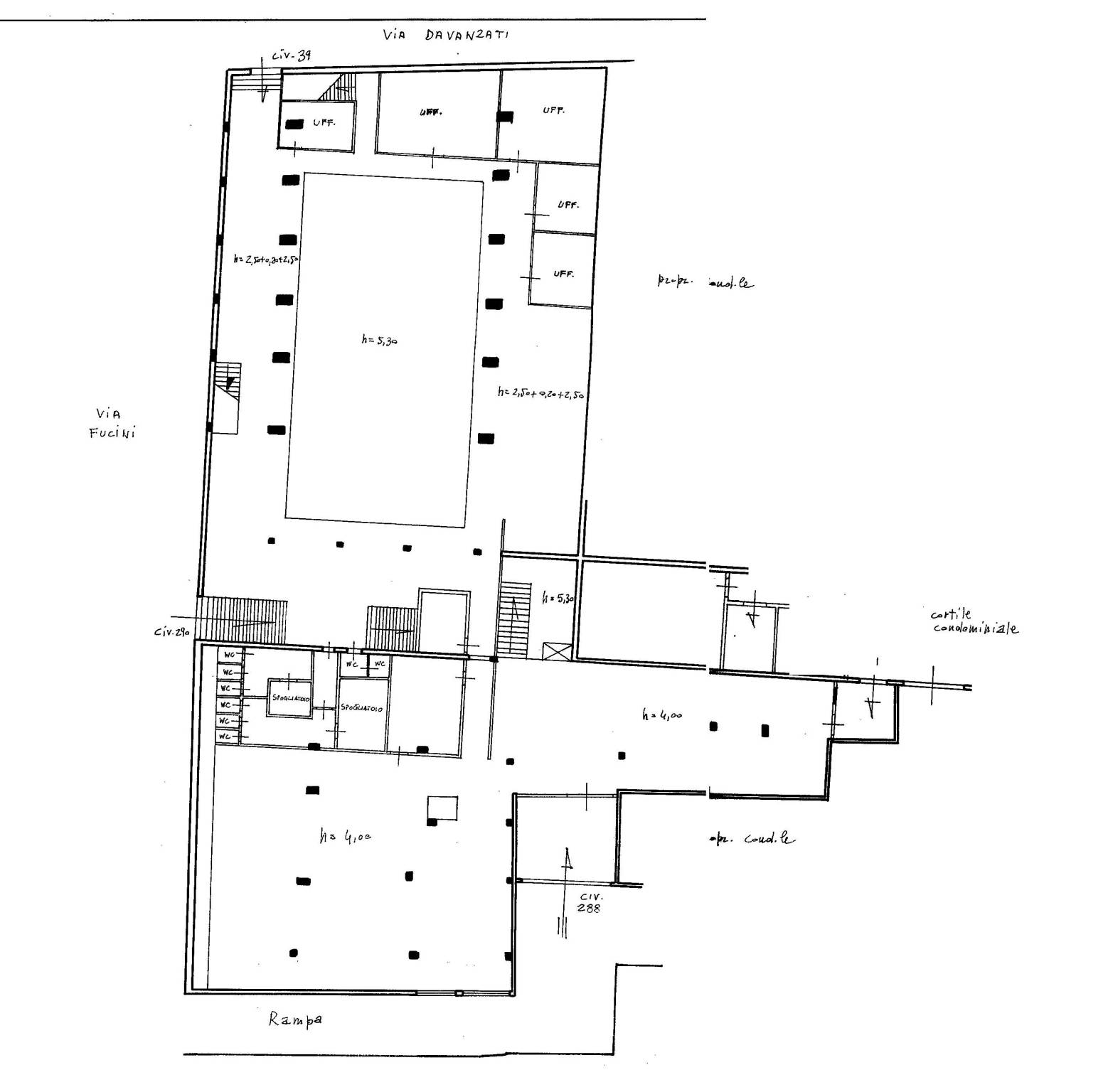
In via Renato Fucini, proponiamo la vendita di un locale commerciale, posto al piano interrato, di 2.200 mq.
L'immobile, di ampia metratura, vanta 2 accessi pedonali uno da Via R. Fucini e uno da Via Davanzati,
un accesso per autoveicoli tramite comoda rampa carrabile, ottimo per carico/scarico merci,
ed altri due accessi dal cortile condominiale e dalla rampa carrabile posta sul retro del fabbricato.
Si compone di un grande ambiente centrale con una doppia altezza (ml 5,30) sulla quale si affacciano delle balconate molto ampie,
dal fulcro centrale dell'immobile si ha accesso a vari locali tutti molto ampi e ben sfruttati, il tutto per una metratura totale di oltre 2.200 MQ.
Al suo interno oggi trova spazio un grandissimo mercatino dell'usato e una nuovissima area Fitness con ingresso separato da via Davanzati.
La locazione offre un interessante reddito per chi cerca investimenti immobiliari a reddito.
Per info e visite chiama:
Manuel Pasquini 329.2307797
L'immobile, di ampia metratura, vanta 2 accessi pedonali uno da Via R. Fucini e uno da Via Davanzati,
un accesso per autoveicoli tramite comoda rampa carrabile, ottimo per carico/scarico merci,
ed altri due accessi dal cortile condominiale e dalla rampa carrabile posta sul retro del fabbricato.
Si compone di un grande ambiente centrale con una doppia altezza (ml 5,30) sulla quale si affacciano delle balconate molto ampie,
dal fulcro centrale dell'immobile si ha accesso a vari locali tutti molto ampi e ben sfruttati, il tutto per una metratura totale di oltre 2.200 MQ.
Al suo interno oggi trova spazio un grandissimo mercatino dell'usato e una nuovissima area Fitness con ingresso separato da via Davanzati.
La locazione offre un interessante reddito per chi cerca investimenti immobiliari a reddito.
Per info e visite chiama:
Manuel Pasquini 329.2307797
Consistenze
| Descrizione | Superficie | Sup. comm. |
|---|---|---|
| Principali | ||
| Negozio - seminterrato | 650 Mq | 650 Mqc |
| Negozio - piano interrato | 1.550 Mq | 1.550 Mqc |
| Totale | 2.200 Mqc | |
